【貸戸建】中川区八田町
| 愛知県名古屋市中川区八田町1002 リエンテ B | | 関西本線・地下鉄東山線・近鉄名古屋線
「八田」駅 徒歩約5分 |
- 専有面積壁芯 109.08㎡
- 築年月2022年10月(築3年5ヶ月)
- 間取り2LDK
- 3口以上コンロ
- 全居室収納
- クローゼット
- シューズIC
- 都市ガス
- 電気
- 下水道
- 全居室フローリング
- エアコン
- 事務所使用可
物件詳細情報
| 所在地 |
愛知県名古屋市中川区八田町1002 リエンテ B |
| 交通 |
関西本線・地下鉄東山線・近鉄名古屋線
「八田」駅 徒歩約5分 |
| 価格 |
|
引渡し方法 |
|
| 土地権利 |
|
その他 |
|
| 土地面積 |
|
私道負担面積 |
|
| 建ぺい率 / 容積率 |
/ |
開発許可番号 |
|
| 都市計画 |
|
用途地域 |
|
| 最適用途 |
|
地目・地勢 |
|
| 法令制度 |
|
国土法 |
|
| 角地 |
|
接道状況 |
|
| 現況 |
空き家 |
引渡し時期 |
相談 |
| 取引態様 |
媒介 |
仲介手数料 |
1.1ヶ月分 |
| 設備・機能 |
都市ガス・電気・下水道・全居室フローリング |
| 諸条件・相談 |
事務所使用可 |
| 立地・環境 |
|
| 所在地 |
愛知県名古屋市中川区八田町1002 リエンテ B |
| 交通 |
関西本線・地下鉄東山線・近鉄名古屋線
「八田」駅 徒歩約5分 |
| 築年月 |
2022年10月(築3年5ヶ月) |
| 建物構造 |
木造 地上3階 |
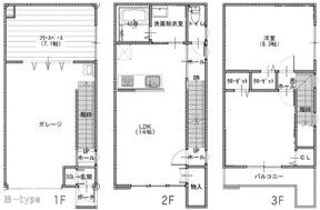
| 間取り |
2LDK(2LDK+S+ガレージ)バルコニーあり |
| リフォーム・リノベーション |
|
| 価格 |
|
土地権利 |
|
| 年間予定賃料収入 |
|
駐車場(月額) |
有 駐車場無料 |
| 土地面積 |
|
私道負担面積 |
|
| 建物面積 |
|
建ぺい率 / 容積率 |
/ |
| 都市計画 |
|
用途地域 |
|
| 地目・地勢 |
|
主要採光面 |
東側 |
| 国土法 |
|
| 角地 |
|
接道状況 |
|
| 現況 |
空き家 |
引渡し時期 |
相談 |
| 取引態様 |
媒介 |
仲介手数料 |
1.1ヶ月分 |
| その他 |
|
| バス・トイレ・洗面所 |
|
| キッチン |
3口以上コンロ |
| 収納 |
全居室収納・クローゼット・シューズIC |
| 設備・機能 |
都市ガス・電気・下水道・全居室フローリング |
| 冷暖房 |
エアコン |
| セキュリティ |
|
| 諸条件・相談 |
事務所使用可 |
| 特徴 |
|
| 立地・環境 |
|
| 所在地 |
愛知県名古屋市中川区八田町1002 リエンテ B |
| 交通 |
関西本線・地下鉄東山線・近鉄名古屋線
「八田」駅 徒歩約5分 |
| 築年月 |
2022年10月(築3年5ヶ月) |
| 建物構造 |
木造 地上3階 |
| 管理形態/方式 |
自主管理方式 |
| 間取り |
2LDK(2LDK+S+ガレージ)バルコニーあり |
| リフォーム・リノベーション |
|
| 価格 |
|
管理費 |
なし |
| 積立金 |
|
土地権利 |
|
| 年間予定賃料収入 |
|
用途地域 |
|
| 敷地面積 |
|
建築面積(建物延面積) |
|
| 国土法 |
|
| 専有面積 |
壁芯 109.08 ㎡ |
主要採光面 |
東側 |
| ペット相談 |
ペット飼育可能(保証金:+家賃1か月分) |
駐車場(月額) |
有 駐車場無料 |
| バイク置場 |
|
駐輪場 |
|
| 現況 |
空き家 |
引渡し時期 |
相談 |
| 取引態様 |
媒介 |
仲介手数料 |
1.1ヶ月分 |
| その他 |
|
| バス・トイレ・洗面所 |
|
| キッチン |
3口以上コンロ |
| 収納 |
全居室収納・クローゼット・シューズIC |
| 設備・機能 |
都市ガス・電気・下水道・全居室フローリング |
| 冷暖房 |
エアコン |
| セキュリティ |
|
| 諸条件・相談 |
事務所使用可 |
| 共用施設 |
|
| 特徴 |
|
| 立地・環境 |
|
| 物件種目 |
貸テラスハウス |
| 所在地 |
愛知県名古屋市中川区八田町1002 リエンテ B |
| 交通 |
関西本線・地下鉄東山線・近鉄名古屋線
「八田」駅 徒歩約5分 |
| 築年月 |
2022年10月(築3年5ヶ月) |
| 建物構造 |
木造 地上3階 |
| 管理形態/方式 |
自主管理方式 |
| 間取り |
2LDK(2LDK+S+ガレージ)バルコニーあり |
| リフォーム・リノベーション |
|
| 価格 |
|
管理費 |
なし |
| 積立金 |
|
土地権利 |
|
| 年間予定賃料収入 |
|
用途地域 |
|
| 敷地面積 |
|
国土法 |
|
| 専有面積 |
壁芯 109.08 ㎡ |
主要採光面 |
東側 |
| 駐車場(月額) |
有 駐車場無料 |
バイク置場 |
|
| 駐輪場 |
|
| 現況 |
空き家 |
引渡し時期 |
相談 |
| 取引態様 |
媒介 |
仲介手数料 |
1.1ヶ月分 |
| その他 |
|
| バス・トイレ・洗面所 |
|
| キッチン |
3口以上コンロ |
| 収納 |
全居室収納・クローゼット・シューズIC |
| 設備・機能 |
都市ガス・電気・下水道・全居室フローリング |
| 冷暖房 |
エアコン |
| 共用施設 |
|
| 特徴 |
|
| 物件種目 |
貸テラスハウス |
| 所在地 |
愛知県名古屋市中川区八田町1002 リエンテ B |
| 交通 |
関西本線・地下鉄東山線・近鉄名古屋線
「八田」駅 徒歩約5分 |
| 築年月 |
2022年10月(築3年5ヶ月) |
| 建物構造 |
木造 地上3階 |
| 管理形態/方式 |
自主管理方式 |
| 間取り |
2LDK(2LDK+S+ガレージ)バルコニーあり |
| リフォーム・リノベーション |
|
| 価格 |
|
管理費 |
なし |
| 積立金 |
|
土地権利 |
|
| 年間予定賃料収入 |
|
駐車場(月額) |
有 駐車場無料 |
| バイク置場 |
|
駐輪場 |
|
| 土地面積 |
|
私道負担面積 |
|
| 建物延面積 |
|
建ぺい率 / 容積率 |
/ |
| 都市計画 |
|
用途地域 |
|
| 地目・地勢 |
|
主要採光面 |
東側 |
| 国土法 |
|
| 角地 |
|
接道状況 |
|
| 現況 |
空き家 |
引渡し時期 |
相談 |
| 取引態様 |
媒介 |
仲介手数料 |
1.1ヶ月分 |
| その他 |
|
| バス・トイレ・洗面所 |
|
| キッチン |
3口以上コンロ |
| 収納 |
全居室収納・クローゼット・シューズIC |
| 設備・機能 |
都市ガス・電気・下水道・全居室フローリング |
| 冷暖房 |
エアコン |
| 共用施設 |
|
| 特徴 |
|
| 所在地 |
愛知県名古屋市中川区八田町1002 リエンテ B |
| 交通 |
関西本線・地下鉄東山線・近鉄名古屋線
「八田」駅 徒歩約5分 |
| 賃料 |
23万円 |
管理費 |
なし |
| 共益費・雑費 |
共益費:なし 雑費:なし |
敷金・礼金 |
敷金:なし 礼金:1ヶ月 |
| 敷引 |
なし |
保証金・保証金償却 |
保証金:1ヶ月 保証金償却:(100%償却) |
| 契約期間 |
2年 |
更新料 |
|
| 権利金 |
|
報酬形態 |
|
| 土地面積 |
|
私道負担面積 |
|
| 建ぺい率 / 容積率 |
/ |
| 都市計画 |
|
用途地域 |
|
| 最適用途 |
|
地目 |
|
| 法令制度 |
|
| 角地 |
|
接道状況 |
|
| 現況 |
空き家 |
引渡し時期 |
相談 |
| 取引態様 |
媒介 |
仲介手数料 |
1.1ヶ月分 |
| その他 |
|
| 設備・機能 |
都市ガス・電気・下水道・全居室フローリング |
| 諸条件・相談 |
事務所使用可 |
| 物件種目 |
貸テラスハウス |
| 所在地 |
愛知県名古屋市中川区八田町1002 リエンテ B |
| 交通 |
関西本線・地下鉄東山線・近鉄名古屋線
「八田」駅 徒歩約5分 |
| 築年月 |
2022年10月(築3年5ヶ月) |
| 建物構造 |
木造 地上3階 |
| 管理形態/方式 |
自主管理方式 |
| 間取り |
2LDK(2LDK+S+ガレージ)バルコニーあり |
| リフォーム・リノベーション |
|
| 賃料 |
23万円 |
管理費 |
なし |
| 共益費・雑費 |
共益費:なし 雑費:なし |
敷金・礼金 |
敷金:なし 礼金:1ヶ月 |
| 敷引 |
なし |
保証金・保証金償却 |
保証金:1ヶ月 保証金償却:(100%償却) |
| 契約期間 |
2年 |
更新料 |
|
| フリーレント |
|
賃貸区分 |
|
| 専有面積 |
壁芯 109.08 ㎡ |
主要採光面 |
東側 |
| ペット相談 |
ペット飼育可能(保証金:+家賃1か月分) |
駐車場(月額) |
有 駐車場無料 |
| バイク置場 |
|
駐輪場 |
|
| 保険等 |
火災保険:要加入 家賃保証:要加入(指定有) |
| 現況 |
空き家 |
引渡し時期 |
相談 |
| 取引態様 |
媒介 |
仲介手数料 |
1.1ヶ月分 |
| その他 |
|
| バス・トイレ・洗面所 |
|
| キッチン |
3口以上コンロ |
| 収納 |
全居室収納・クローゼット・シューズIC |
| 設備・機能 |
都市ガス・電気・下水道・全居室フローリング |
| 冷暖房 |
エアコン |
| セキュリティ |
|
| 共用施設 |
|
| 諸条件・相談 |
事務所使用可 |
| 特徴 |
|
| 物件種目 |
貸テラスハウス |
| 所在地 |
愛知県名古屋市中川区八田町1002 リエンテ B |
| 交通 |
関西本線・地下鉄東山線・近鉄名古屋線
「八田」駅 徒歩約5分 |
| 築年月 |
2022年10月(築3年5ヶ月) |
| 建物構造 |
木造 地上3階 |
| 間取り |
2LDK(2LDK+S+ガレージ)バルコニーあり |
| リフォーム・リノベーション |
|
| 賃料 |
23万円 |
管理費 |
なし |
| 共益費・雑費 |
共益費:なし 雑費:なし |
敷金・礼金 |
敷金:なし 礼金:1ヶ月 |
| 敷引 |
なし |
保証金・保証金償却 |
保証金:1ヶ月 保証金償却:(100%償却) |
| 契約期間 |
2年 |
更新料 |
|
| 権利金 |
|
造作譲渡 |
|
| フリーレント |
|
賃貸区分 |
|
| 土地面積 |
|
用途地域 |
|
| 建物面積・使用部分面積 |
|
主要採光面 |
東側 |
| 角地 |
|
接道状況 |
|
| 報酬形態 |
|
駐車場(月額) |
有 駐車場無料 |
| バイク置場 |
|
駐輪場 |
|
| 保険等 |
火災保険:要加入 家賃保証:要加入(指定有) |
| 現況 |
空き家 |
引渡し時期 |
相談 |
| 取引態様 |
媒介 |
仲介手数料 |
1.1ヶ月分 |
| その他 |
|
| バス・トイレ・洗面所 |
|
| キッチン |
3口以上コンロ |
| 収納 |
全居室収納・クローゼット・シューズIC |
| 設備・機能 |
都市ガス・電気・下水道・全居室フローリング |
| 冷暖房 |
エアコン |
| 共用施設 |
|
| 駐車場 |
|
| 諸条件・相談 |
事務所使用可 |
| 特徴 |
|
| 所在地 |
愛知県名古屋市中川区八田町1002 リエンテ B |
| 交通 |
関西本線・地下鉄東山線・近鉄名古屋線
「八田」駅 徒歩約5分 |
| 賃料 |
23万円 |
管理費 |
なし |
| 共益費・雑費 |
共益費:なし 雑費:なし |
敷金・礼金 |
敷金:なし 礼金:1ヶ月 |
| 敷引 |
なし |
保証金・保証金償却 |
保証金:1ヶ月 保証金償却:(100%償却) |
| 契約期間 |
2年 |
更新料 |
|
| フリーレント |
|
保険等 |
火災保険:要加入 家賃保証:要加入(指定有) |
| 土地面積 |
|
角地 |
|
| 接道状況 |
|
| 現況 |
空き家 |
引渡し時期 |
相談 |
| 取引態様 |
媒介 |
仲介手数料 |
1.1ヶ月分 |
| その他 |
|
・家賃保証会社指定有(フォーシーズ株式会社)
初回保証料:家賃1か月分
・ペット飼育可能(保証料:+家賃1か月分)
・事業用として使用可能(解約前通知:3カ月前告知)
・エアコン4台有
↑ PAGE TOP